全新裝潢,合法商用空間可營業登記。
體育園區正核心地段,便利商店,麥當勞,停車場,餐廳都在隔壁。機能超方便
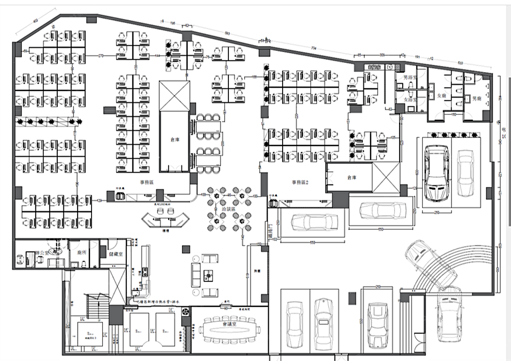
9個私有停車位,80~100大型辦公座位,3米霸氣泡茶桌,影印機,會議室,派對交誼區,沙發區
茶水間,廚房,男女廁,老闆休息室,浴室等設備完整齊全。
豪氣配置,市場唯一,歡迎來電預約參觀!!!
0972775176~林泓貿
九車位.核心地段.重劃站前.超大辦公室
1,075元/坪/月押金二個月
275
坪B1 / 14F
高檔裝潢
裝潢程度基礎資訊
管理費18,000元/月
登記可工商登記
隔間可隔間
推薦工位80-100個
車位平面式
適合行業不限
提供設備
寬頻網路
分離式冷氣
辦公家具
獨立衛生間
保全人員
免費車位
收發快遞
訪客接待
保潔服務
洽談室
會議室
書吧
休閒區
多功能廳
茶水間
自動售賣機
電冰箱
微波爐
WIFI覆蓋
複印/打印

















