業主可配合打 30年長期合約
(此租金包含三車平面車位!)
租金誠可商議~ 歡迎同業配合~
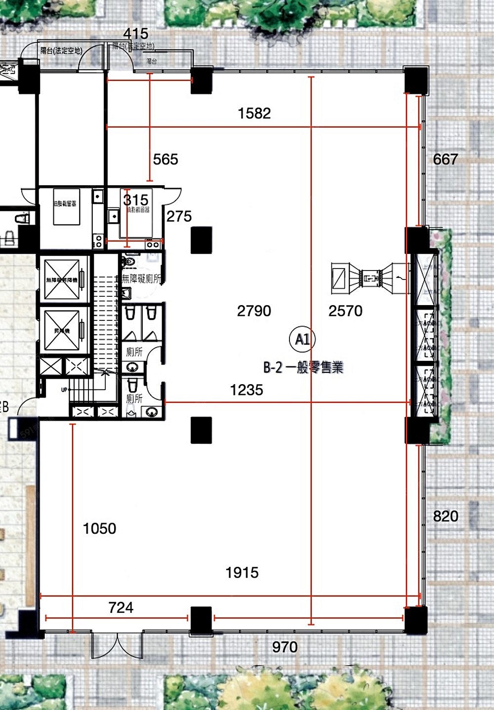
稀有精華地段 三角窗三面臨路 帝王店面招商!
適合 銀行金融業、醫療醫美業、餐飲集團等~
僅此一戶稀有案件!!!歡迎來電諮詢!!!
歡迎來電預約看屋-0953-557-777 莊先生(醬油)
Line / Wechat 的ID是:duncan0128(後四碼為數字)
-
長宏不動產有限公司
經紀人:王家勇(101)新北經字第002548號
不動產營業員:莊登凱(103)登字第262663號
租賃住宅管理:莊登凱(108)登字第005225號
家樂福㊣三面臨路帝王店面招商/金融業、醫療醫美、餐飲集團
押金二個月
145.3
坪1F / 23F
路邊/臨街門面
類型基礎資訊
租金不含水電費
登記可工商登記
隔間可隔間
裝潢尚未裝潢
車位平面式
遷入時間隨時可遷入
臨路路寬文化三路一段(30米)
客流人群附近居民·遊客·上班族·國中學生
禁用行業八大行業·夾娃娃機·洗車業
屋況介紹













