七期指標性商辦大樓-TOP1環球經貿中心
整層承租,裝修期2個月,押金3個月
可分2/3單位承租,裝修期1個月,押金2個月
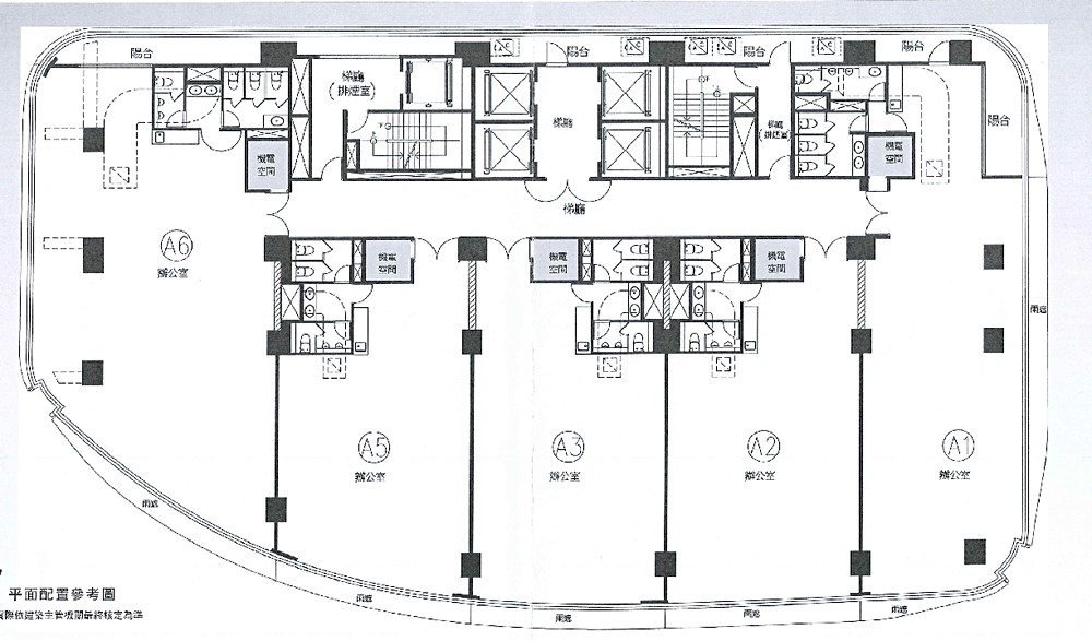
25樓總建坪534.85坪,共11個平面車位
A-123坪 2車位
B-90坪 2車位
C-90.5坪 2車位
D-86.1坪 2車位
E-145.2坪 3車位
租金未含稅、未含管理費、未含清潔費
--------------------------------------------
💌看屋、房地產買賣歡迎預約💌
0911-282715 林小姐
有物件需求歡迎➕官方LINE幫您找物件
🅛🅘🅝🅔 :@apx2968h
➖️➖️➖️➖️➖️➖️➖️➖️➖️➖️➖️➖️
群義房屋全國SOGO加盟店
金富春有限公司
葉志鴻(104) 中市經紀字第01625號
👉屋主房屋委賣👉買方物件代尋
👉土地店面👉稅務試算
🌿六妹七期指標性商辦TOP1環球經貿中心洽承辦
1,311元/坪/月押金面議
41.2
坪25F / 29F
尚未裝潢
裝潢程度基礎資訊
登記可工商登記
隔間可隔間
推薦工位31-43個
車位平面式











