📍【松山共構A級辦公|稀有釋出】
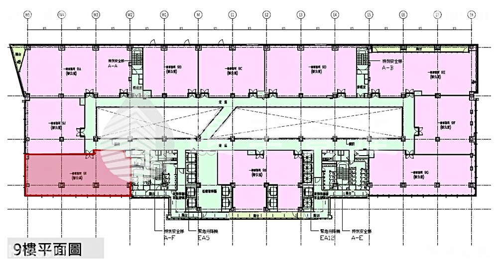
🔸 權狀面積:147.25坪 (使照高度4.2M)
🔸 主建物+附屬:約90.31坪
🔸 樓層:9F/17F
🔸 租金:2,400/坪元(未稅5%=月租NT$353,400未稅=371,070含稅)
🔸 押金:三個月月租金
🔸 管理費:建物180/坪(未稅)
🔸 車位租金:坡道平面另租,NT$6,000/坪(未稅)+800車位管理費(未稅)/個
🔸 交通:雙捷運松山站/台鐵松山站
🔸 周邊機能:松山Citylink/國賓意舍酒店(Amba Taipei Songshan)/饒河夜市/五分埔商圈等商場林立
🔸 備註:本戶租約至114/10/31 可提前於上班日安排約看
📷 加line惠賜名片(ID:vicky650810)
📩 歡迎洽詢,提前安排實地參觀!
=================================================================================
匯幸資產簡介
頂尖實力,值得信賴的商用不動產團隊
匯幸資產集結一支戰力堅強的商用不動產菁英團隊,團隊成員深耕商用不動產仲介近20 年,已達成超過130筆成交,成交對象涵蓋金融保險、上市櫃公司、基金會、高淨值家族、外商公司及一般企業與自然人。匯幸資產的夥伴超過半數為年度千萬業績經紀人,不只經驗豐富,專業資格更具國際與國家級認證。團隊中擁有英國皇家特許測量師學會(RICS)認證專家,以及多位合格不動產經紀人,為您提供最專業、最值得信賴的服務。
=================================================================================
匯幸資產專營商用不動產,誠摯歡迎同業配案,
無論是買賣或租賃,皆秉持專業分工、資訊透明、誠信合作 原則。
期待與您攜手,讓每一次合作都能成為三贏!
=================================================================================
本廣告所載房屋與土地資訊(如坪數、用途、登記資料等)僅供參考,如與實際情形不符,仍以地政機關登記為準。
照片如包含街景或周邊環境,係為示意用途,非標的物本身。
格局圖為未依實際比例繪製之概略圖,實際格局與尺寸應以現場及合法圖說為準。
🏢匯幸資產專營商用🏢松山車站A辦
2,400元/坪/月押金面議
147.25
坪9F / 17F
簡易裝潢
裝潢程度基礎資訊
管理費26,505元/月
登記可工商登記
隔間可隔間
推薦工位53-74個
客梯/貨梯12部/2部








