🩵位於25米鎮南路上,沙鹿市區,機能佳
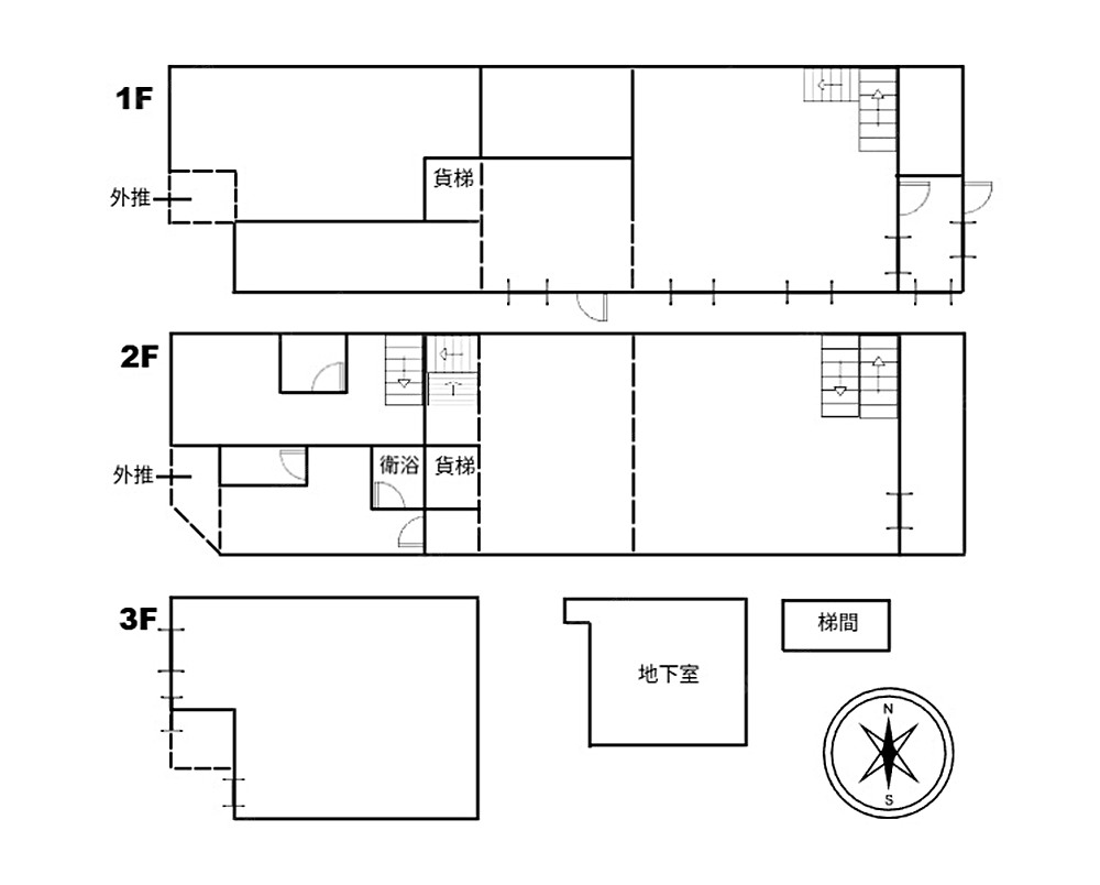
🩵18米超大面寬,可規劃三店面、停五台車
🩵深度約40米,超大空間好規劃,樓上可規劃套房、辦公室、員工宿舍
🩵近中港路、未來捷運藍線
🩵適合中醫診所、寵物店、超市,餐廳
🚫禁八大行業
❤️歡迎預約賞屋,可以訊息或直接來電唷❤️
📞0919013509蔣芯睿(手機可直接加line)
📞0919013509蔣芯睿(手機可直接加line)
📞0919013509蔣芯睿(手機可直接加line)
歡迎屋主、學長姐委託出租銷售
🌱種籽地產有限公司🌱
林軍豪(104)中市經紀字第01596號
永慶不動產北屯旱溪松竹門市
















