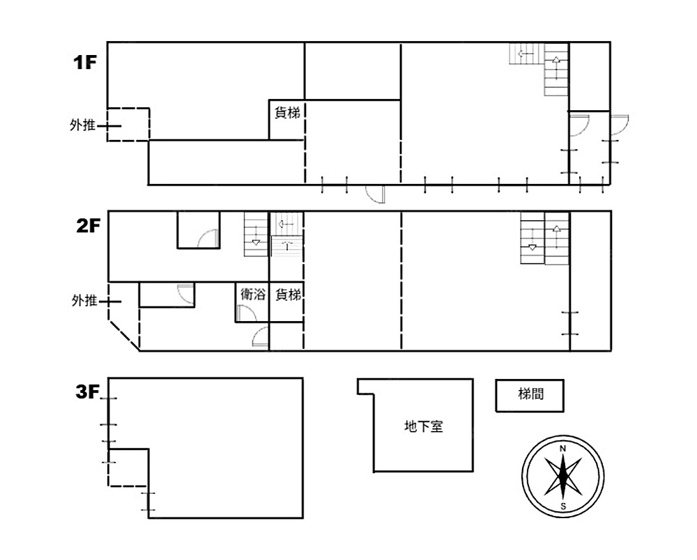
🩵位於25米鎮南路上,沙鹿市區,機能佳🩵18米超大面寬,可規劃三店面、停五台車🩵深度約40米,超大空間好規劃,樓上可規劃套房、辦公室、員工宿舍🩵近中港路、未來捷運藍線🩵適合中醫診所、寵物店、超市,餐廳
🚫禁八大行業
-種籽團隊多元⾏銷專業找房,歡迎委託-
種籽團隊開業5年開5店
賀成交超過2500戶,助超過4千組顧客成家
總委託件數已達8800件持續增加中,感謝支持!
從網路買方經營,到老客戶轉介再成交
種籽團隊助顧客解決不動產問題
完成人生目標、實現家業夢想
🔥屢創月業績紀錄🔥全台履保冠軍🔥
🔥全台店總頂尖獎🔥全台店總巔峰獎🔥
不限成屋、預售、土地、廠房賀成交
專營北屯機捷12單,賀成交件數全台第⼀
✨歡迎委託我們✨
讓我們為獨具慧眼的您
找到屬於您的美好房屋🎯
🌳種籽團隊|北屯松竹旱溪店
🌳種籽團隊|機捷敦富春賞店
🌳種籽團隊|14期松竹敦化店
🌳種籽團隊|北屯太原車站店
🌳種籽團隊|14期山西昌平店
來電專人服務|專業找房|不動產委託
沙鹿區鎮南路|黃金透店整棟出租|近靜宜
押金面議
坪
商業街店面
類型基礎資訊
登記可工商登記
隔間視具體情況
裝潢簡易裝潢
遷入時間隨時可遷入
















